Exposició

Superficie

82m2

Valencia

2021

Constructora

MDF Construcción

Mobiliario

Teulat

Fotografía

María Mira

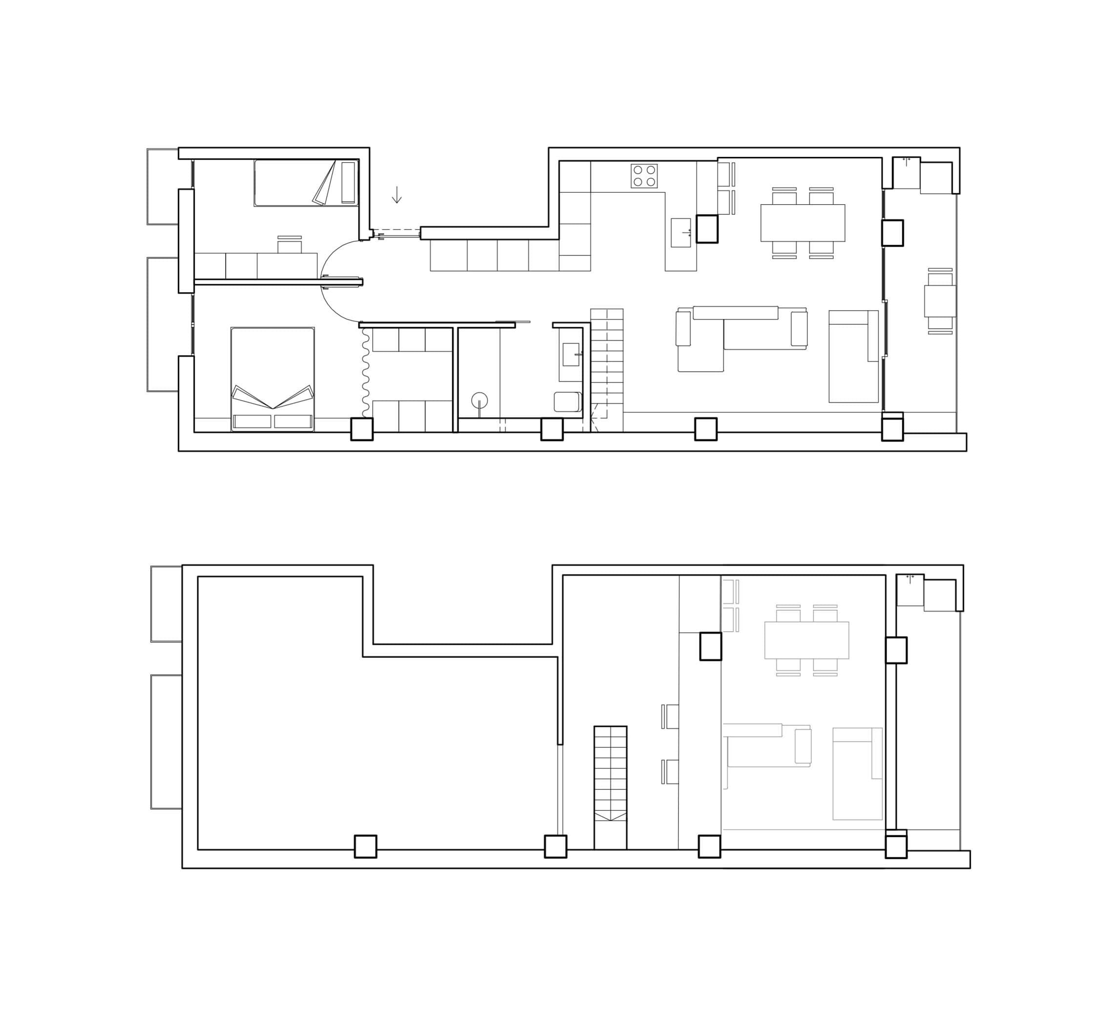
La vivienda se sitúa en una última planta de un edificio de 1930 que originalmente contaba con un falso techo que escondía una doble altura. Tras el derribo se descubre toda una estructura de pilares y muros de carga de ladrillo macizo y las vigas de madera de mobila provenientes de Nueva Orleans (EEUU).

La planta de la vivienda es rectangular con la zona de noche dando a la calle principal y la zona de día al patio trasero con una pequeña terraza. Se crea un espacio común amplio y luminoso para el salón, comedor y cocina, los cuales cuentan también con la doble altura en la que se ve el altillo con el estudio.

Se diseña una vivienda con materiales limpios y naturales, donde predomina el color blanco y los tonos suaves en todos los materiales.

Exposició

Superficie

82m2

Valencia

2021

Constructora

MDF Construcción

Mobiliario

Teulat

Fotografía

María Mira